RARE GRAND 2 PIECES AVEC BUREAU (3 PIECES) - "LE ROCAZUR"

Loyer sur demande
Petrini Exclusive Real Estate Monaco

Petrini Exclusive Real Estate Monaco

3 Avenue des Citronniers

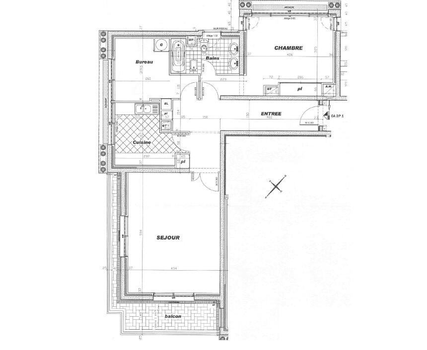
Nous vous proposons un spacieux appartement composé de trois pièces dont un bureau. Ce bien est situé en étage élevé. L'appartement se trouve dans la résidence "Le Rocazur" connue pour ses prestations de standing. Daux parkings complètent ce bien

Réf. : PEL516
Loyer : Sur demande
Charges :
+630 €
Nombre de pièces : 3 pièces
Chambres : 2
SDB : 1
Type de bien : Appartement
Immeuble : Rocazur
Quartier : La Rousse - Saint Roman (Monaco)
Superficie hab. : 103 m²
Superficie totale : 117 m²
Superficie terrasse : 14 m²
Etage : 6
Libération : Immédiatement
Parkings : 2

Plus de détails

L'appartement se compose d'une entrée, un grand séjour avec salle à manger, une cuisine équipée, une chambre, un bureau pouvant être aménager en chambre, une salle de bain et un balcon. Le loyer inclus une cave et deux places de parking. 

Petrini Exclusive Real Estate Monaco

Petrini Exclusive Real Estate Monaco

3 Avenue des Citronniers

Contact

EFIORZ
Copiez le code dans la zone à sa droite
* informations obligatoires

Situation du bien

La Rousse - Saint Roman

Le quartier de La Rousse Saint Roman est situé à la frontière orientale de Monaco contre la ville de Roquebrune Cap Martin.

Il accueille de nombreux immeubles comme le Monte Carlo Sun, le Parc Saint Roman, la tour de l'Annonciade ou la Tour Odeon.

Quartiers de Monaco

Mareterra Carré d'Or Condamine Fontvieille Jardin Exotique La Rousse - Saint Roman Larvotto Monaco-Ville Moneghetti Monte-Carlo Port