SPACIEUX BUREAU - RÉSIDENCE « LE ROCAZUR»

11 000 €
Petrini Exclusive Real Estate Monaco

Petrini Exclusive Real Estate Monaco

3 Avenue des Citronniers

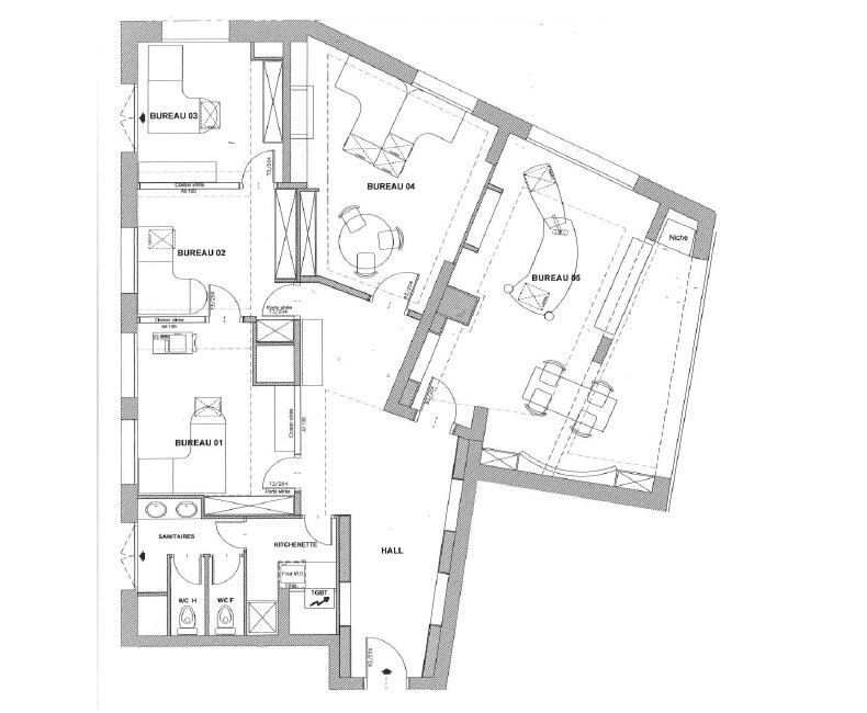
Spacieux bureau situé dans la résidence "Le Rocazur". Situé dans le quartier de "La Rousse" ce bien est idéal pour recevoir votre clientèle. Il se compose de cinq pièces parfaites pour accueillir vos collaborateurs.

Réf. : PEL634
Loyer : 11 000 €
Charges :
+600 €
Nombre de pièces : 5 pièces
SDB : 1
Type de bien : Bureau
Immeuble : Rocazur
Quartier : La Rousse - Saint Roman (Monaco)
Superficie hab. : 147 m²
Superficie totale : 147 m²
Etage : 1
Libération : 01/2025
Parkings : 2

Plus de détails

Beau bureau composé de cinq pièces, agencés et décorés avec goût, avec toilette et kitchenette pour une superficie de 147 m2. Inclus dans le loyer, deux places de parking. Loués avec le mobilier.

Petrini Exclusive Real Estate Monaco

Petrini Exclusive Real Estate Monaco

3 Avenue des Citronniers

Contact

DJOUVX
Copiez le code dans la zone à sa droite
* informations obligatoires

Situation du bien

Quartiers de Monaco

Mareterra Carré d'Or Condamine Fontvieille Jardin Exotique La Rousse - Saint Roman Larvotto Monaco-Ville Moneghetti Monte-Carlo Port