Saint-Roman - Le Rocazur - Vaste bureau avec parkings

12 000 €
John Taylor

John Taylor

20, boulevard des Moulins

Réf. : L1792MC
Loyer : 12 000 €
Charges :
+600 €
Nombre de pièces : 5 pièces
Type de bien : Bureau
Immeuble : Rocazur
Quartier : La Rousse - Saint Roman (Monaco)
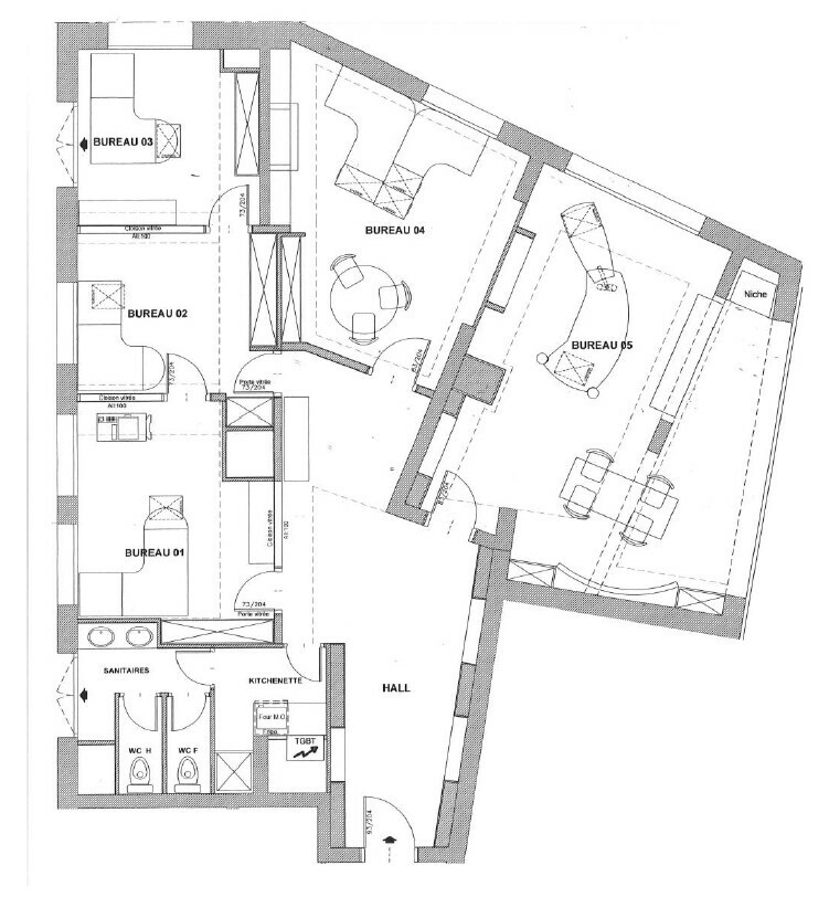
Superficie totale : 174 m²
Etage : 1er
Libération : Dans 1 mois
Parkings : 2

Plus de détails

Voici une version optimisée de votre texte :

Ces locaux de standing, d’une superficie de 147 m², sont aménagés et décorés avec soin. Ils sont loués entièrement meublés, comprenant : bureaux, chaises, tables, armoires, ainsi qu'une kitchenette équipée.
Ce bien est également proposé avec deux places de parking.

 

John Taylor

John Taylor

20, boulevard des Moulins

Contact

BCHUWZ
Copiez le code dans la zone à sa droite
* informations obligatoires

Situation du bien

Quartiers de Monaco

Mareterra Carré d'Or Condamine Fontvieille Jardin Exotique La Rousse - Saint Roman Larvotto Monaco-Ville Moneghetti Monte-Carlo Port