Location d'appartements à Monaco

MONTE CARLO SUN / STUDIO AVEC TERRASSE / CAVE et PARKING

Retour à la liste

3 500 €
Nombre de pièces : studio
Type de bien : Appartement
Ville : Monaco
Pays : Monaco
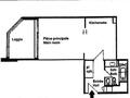
Superficie hab. : 42 m²
Superficie totale : 50 m²
Superficie terrasse : 8 m²
Libération : 1er avril 2026
Parkings : 1

Grand studio avec entrée et placard, cuisine équipée, pièce principale, salle de bains et loggia.

Une cave 

Parking 


Situation du bien

Agence

Coldwell Banker Etic Realty
15, boulevard Princesse Charlotte

www.eticimmobilier.com

+377 93 50 57 94

Contact

* informations obligatoires

Retour à la liste

FR EN IT

Quartiers de Monaco

Anse du Portier / Carré d'Or / Condamine / Fontvieille / Jardin Exotique / La Rousse - Saint Roman / Larvotto / Monaco-Ville / Moneghetti / Monte-Carlo / Port