Bel appartement Condamine
Proche écoles, commodités et commerces
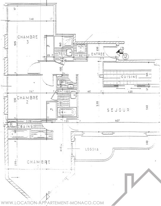
Situé dans un immeuble avec concierge, à deux pas de la place d'Armes, bel appartement en cours de rénovation, composé d'une entrée, séjour avec balcon, cuisine équipée,4 chambres avec salle de bains/douche attenantes, toilette invités. Placards. Climatisation et double vitrage.
Cave et Parking. Bail de 3 ans. .