Appartement familial luxueux avec vue panoramique

Loyer sur demande
MyCrown Estates

MyCrown Estates

1 Bd Princesse Charlotte

Équipements de l’immeuble : concierge 24h/24 et 7j/7.

Réf. : MCE146
Loyer : Sur demande
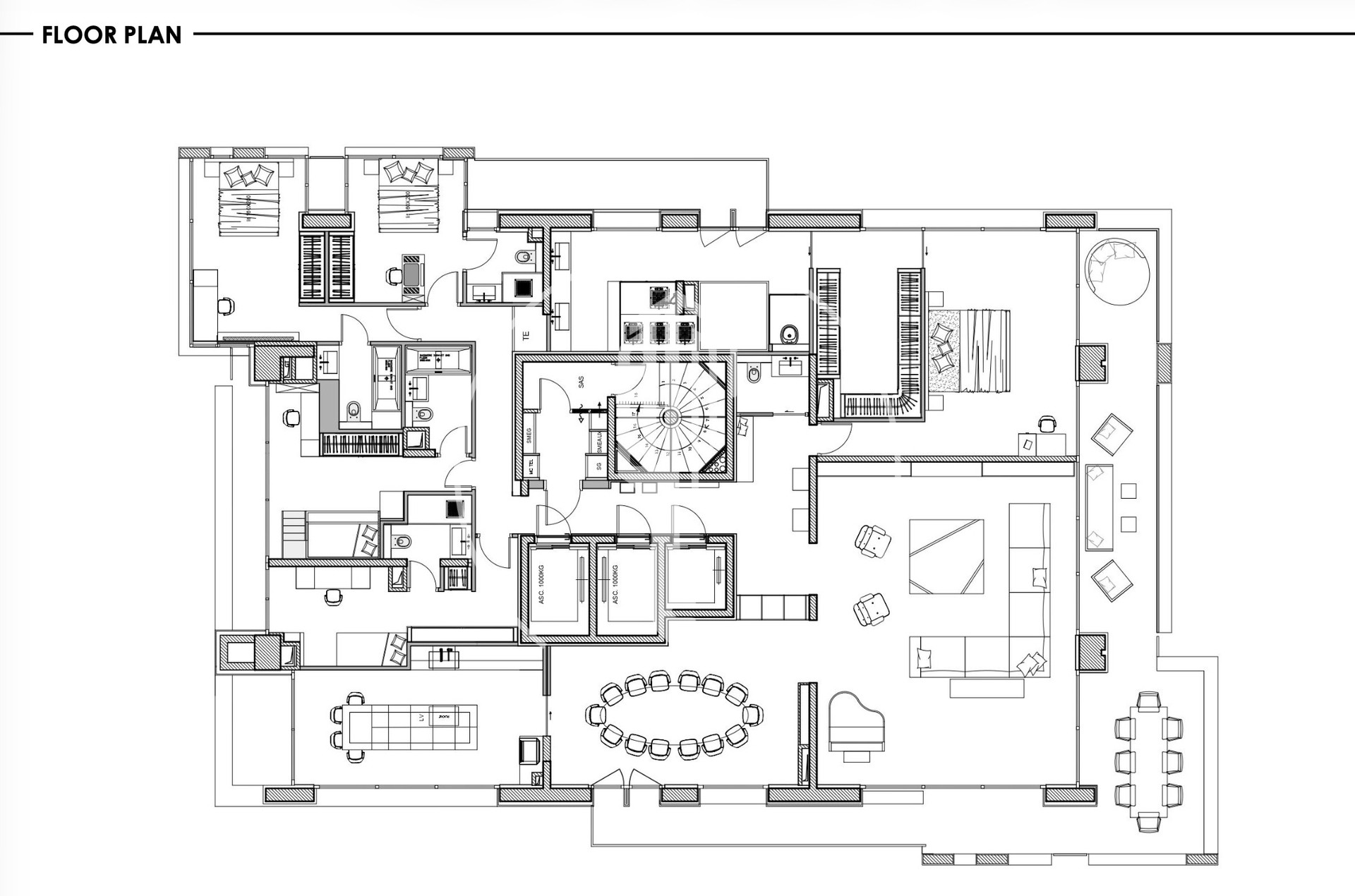
Nombre de pièces : +5 pièces
Chambres : 5
SDB : 5
Type de bien : Appartement
Immeuble : Monte Carlo View
Quartier : Jardin Exotique (Monaco)
Superficie totale : 440 m²
Etage : 17
Parkings : 5

Plus de détails

Appartement somptueux et spacieux occupant un étage entier d’un immeuble moderne et exceptionnel, situé dans un quartier paisible et résidentiel. Considérée comme l’un des plus beaux bâtiments de la Principauté, cette propriété emblématique a été conçue par le célèbre architecte Jean-Michel Wilmotte. C’est l’un des plus hauts bâtiments de Monaco et il offre des vues exceptionnelles s’étendant jusqu’à la côte italienne.

L’appartement dispose d’un vaste espace de vie avec son salon s’ouvrant sur une grande terrasse, offrant une vue panoramique à couper le souffle sur la Principauté, le Palais du Prince et le bleu infini de la mer Méditerranée.

Cette propriété intègre tous les conforts modernes et équipements haut de gamme, incluant la domotique, un système sonore intégré au plafond, le chauffage par le sol et la climatisation contrôlés individuellement depuis toutes les pièces principales. Les baies vitrées minimalistes du sol au plafond créent une connexion fluide entre les espaces intérieurs et extérieurs, mettant en valeur les vues spectaculaires autour de la propriété.

L’appartement comprend 5 chambres, chacune avec sa propre salle de bain attenante. La chambre principale s’ouvre sur une grande terrasse et comprend un home cinéma, un dressing double ainsi qu’un spa avec jacuzzi.

Finitions et équipements de luxe partout.

MyCrown Estates

MyCrown Estates

1 Bd Princesse Charlotte

Contact

HOQUWZ
Copiez le code dans la zone à sa droite
* informations obligatoires

Situation du bien

Quartiers de Monaco

Mareterra Carré d'Or Condamine Fontvieille Jardin Exotique La Rousse - Saint Roman Larvotto Monaco-Ville Moneghetti Monte-Carlo Port