L'adresse idéale pour une famille

28 000 €
Miells-Christie's

Miells-Christie's

14 Avenue de la Costa

Appartement traversant

Réf. : MP-0291
Loyer : 28 000 €
Charges :
+4 001 €
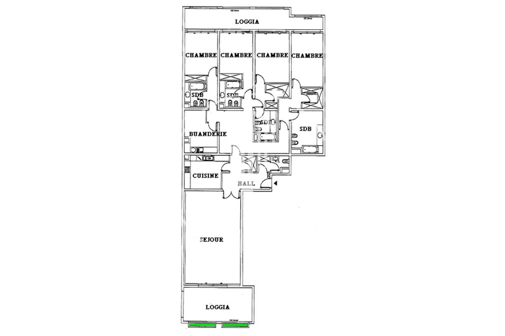
Nombre de pièces : 5 pièces
Chambres : 4
SDB : 4
Type de bien : Appartement
Immeuble : Memmo Center
Quartier : Fontvieille (Monaco)
Superficie hab. : 252 m²
Superficie totale : 305 m²
Superficie terrasse : 53 m²
Etage : 3
Libération : 01/06/2026
Parkings : 2

Plus de détails

Luxueux appartement dans la Marina de Fontvieille, face au port de Cap d'Ail. Traversant Sud/Nord.
Idéalement agencé, spacieuse terrasse/loggia face mer, et terrasse / loggia le long des chambres. A proximité immédiate de toutes les commodités.

Entrée, séjour, cuisine équipée, buanderie, 4 chambres, 2 dressings, 3 placards, 4 salles de bains, WC invité, 2 vastes loggias. 2 parkings, 1 cave.
Miells-Christie's

Miells-Christie's

14 Avenue de la Costa

Contact

DIJKNX
Copiez le code dans la zone à sa droite
* informations obligatoires

Situation du bien

Fontvieille

Le quartier de Fontvieille, situé dans la partie ouest de Monaco est limitrophe de la ville de Cap d'Ail. Il abrite des usines, des bureaux et des habitations, un centre de secours des sapeurs-pompiers monégasques.

Quartiers de Monaco

Mareterra Carré d'Or Condamine Fontvieille Jardin Exotique La Rousse - Saint Roman Larvotto Monaco-Ville Moneghetti Monte-Carlo Port