APPARTEMENT 5 PIECES DE GRAND STANDING

Loyer sur demande
BC PROPERTIES MONACO

BC PROPERTIES MONACO

13 Boulevard Princesse Charlotte

Au cœur du Carré d’Or, dans la prestigieuse résidence du Métropole, découvrez un appartement d’exception au sein d’un environnement ultra privilégié.
Conciergerie 24h/24, sécurité, accès aux services de l’Hôtel Métropole et proximité immédiate des boutiques de luxe et de la place du Casino font de ce bien une adresse rare au cœur de Monaco.

Réf. : MC 4A8
Loyer : Sur demande
Charges :
+7 200 €
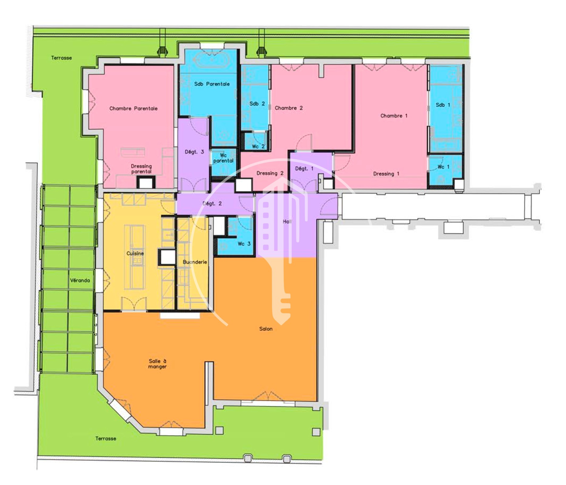
Nombre de pièces : +5 pièces
Chambres : 3
SDB : 3
Type de bien : Appartement
Immeuble : Le Metropole
Quartier : Carré d'Or (Monaco)
Superficie hab. : 295 m²
Superficie totale : 428 m²
Superficie terrasse : 133 m²
Etage : 4
Box : 3

Plus de détails

Ce bien d’exception offre un vaste séjour baigné de lumière, ouvert sur une terrasse avec une vue imprenable sur le Casino, ainsi qu’un élégant jardin d’hiver avec cheminée, lui aussi prolongé par un extérieur. La cuisine, entièrement équipée, propose des prestations haut de gamme. Les chambres, situées côté cour, garantissent un calme absolu et disposent chacune de leur salle de bains ainsi que de rangements intégrés.

Entièrement rénové avec des matériaux luxueux, l’appartement offre un confort rare au cœur de la Principauté.

BC PROPERTIES MONACO

BC PROPERTIES MONACO

13 Boulevard Princesse Charlotte

Contact

EGJOQX
Copiez le code dans la zone à sa droite
* informations obligatoires

Situation du bien

Carré d'Or

Quartier mythique de la Principauté de Monaco, le Carré d'Or est la zone qui entoure la Place du Casino de Monte-Carlo.

On y retrouve les boutiques des grands noms de la couture de luxe telles que Hermès, Céline, Christian Dior, Saint Laurent Rive Gauche, Louis Vuitton, Gucci, Chanel, Prada, Ichthys ou les vitrines de joailliers avec Cartier, Chopard, Van Cleef Arpels, Bulgari, Piaget, Repossi... Mais aussi des immeubles de haut luxe très prisés par les acquéreurs comme le One Monte-Carlo, le Park Palace, le Metropole, le Mirabeau, le Monte Carlo Star ou encore le Montaigne.

Quartiers de Monaco

Mareterra Carré d'Or Condamine Fontvieille Jardin Exotique La Rousse - Saint Roman Larvotto Monaco-Ville Moneghetti Monte-Carlo Port